





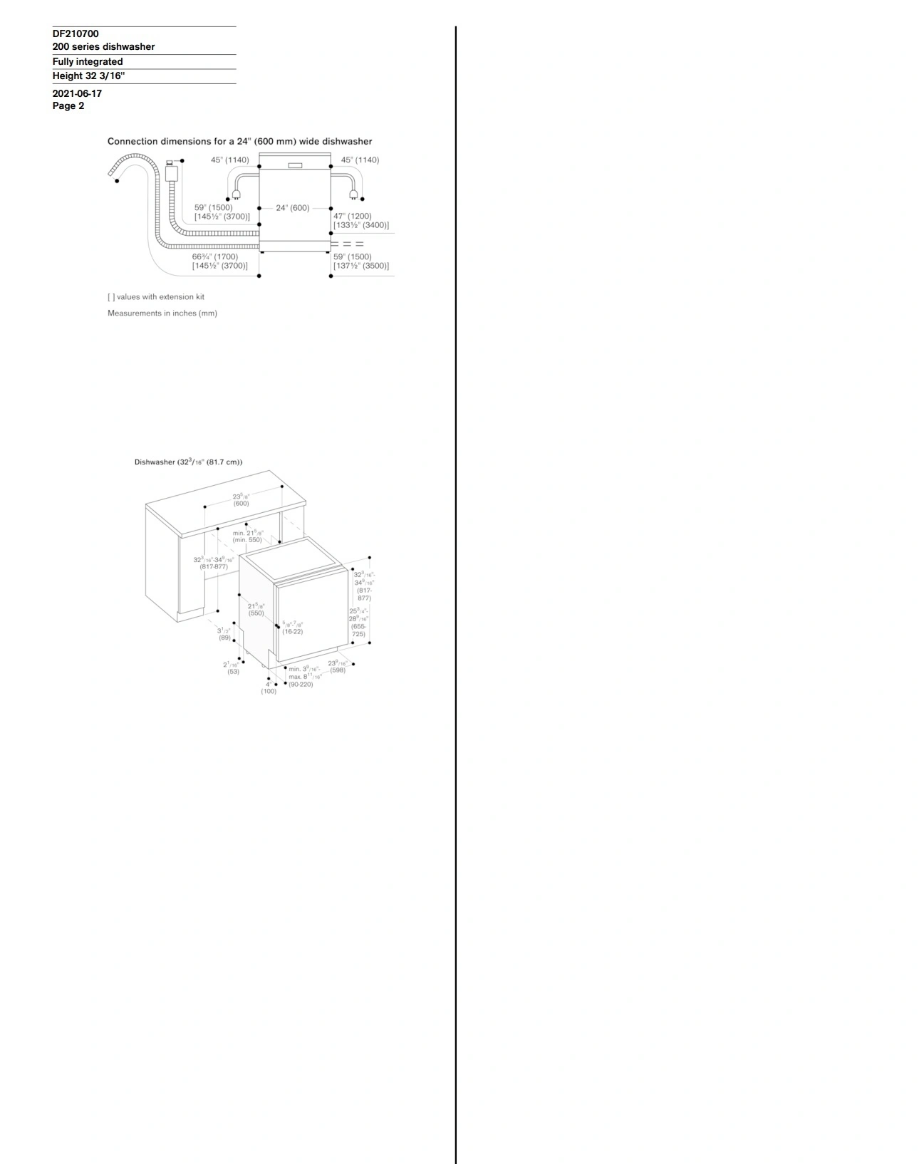
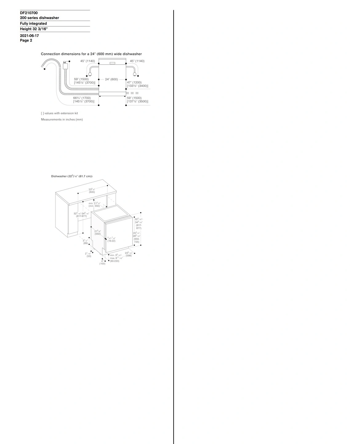
Gaggenau Dishwasher
$1,000
Gaggenau fully integrated dishwasher. Comes with all original accessories and installation instructions. Please inquire for more details.
- ConditionNew
WHERE TO MEET
SELLER

Alex
Bramalea
181 review
0 chats0 favorites11 views
